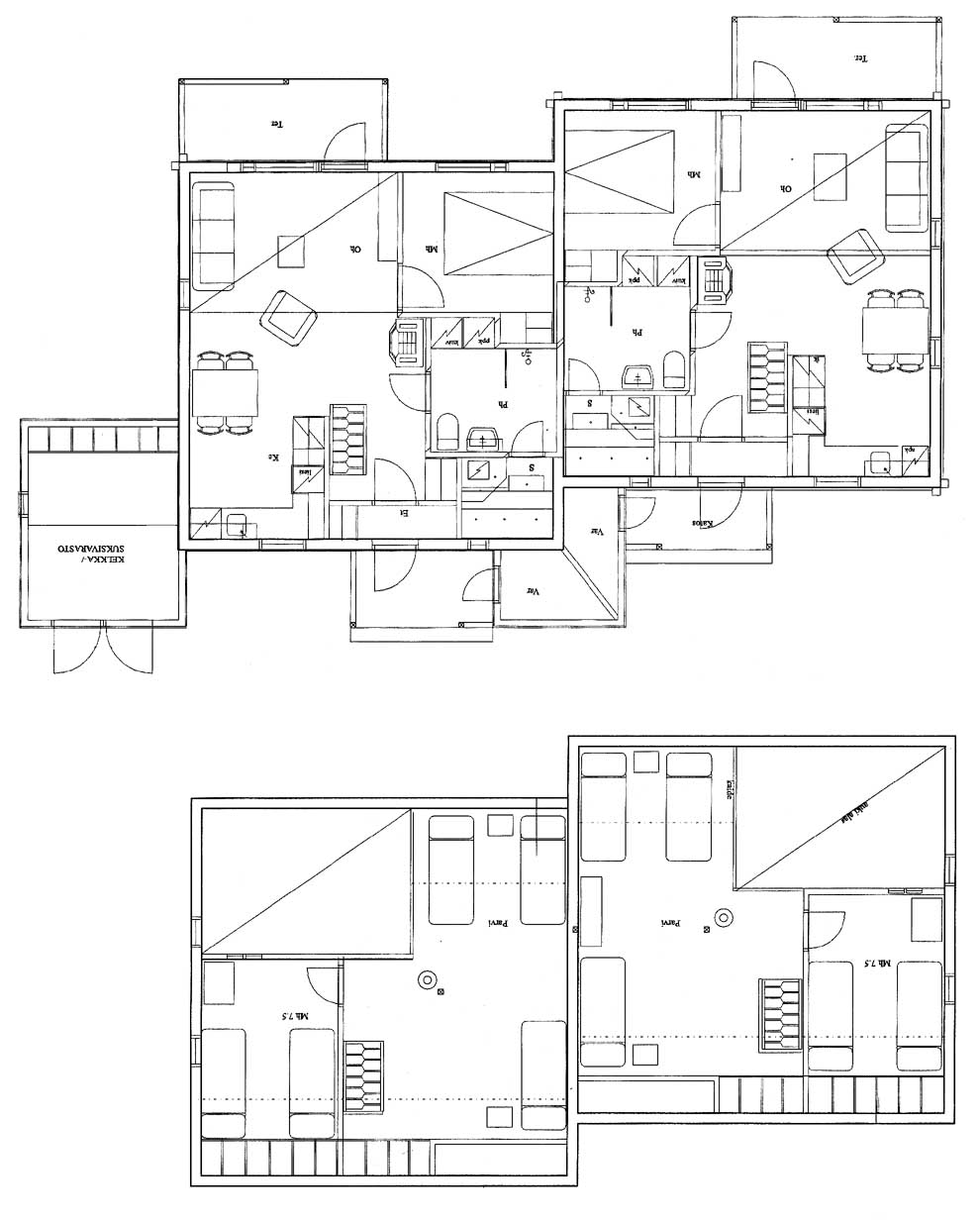
Aihkinmutka on paritalo, jossa on kaksi samanlaista huoneistoa 2 mh + tupakeittiö pinta-alaltaan 70 m2 + parvi 14,5 m2.
Lisäksi huoneistoilla on yhteinen kelkka- ja suksivarasto.
-
Alkuun
- -
Pohjapiirrokset
- -
Kuvia
- -
Tietoa
- -
Mökin sijainti
- -
Yhteystiedot
-
hanname©ullava.fi